
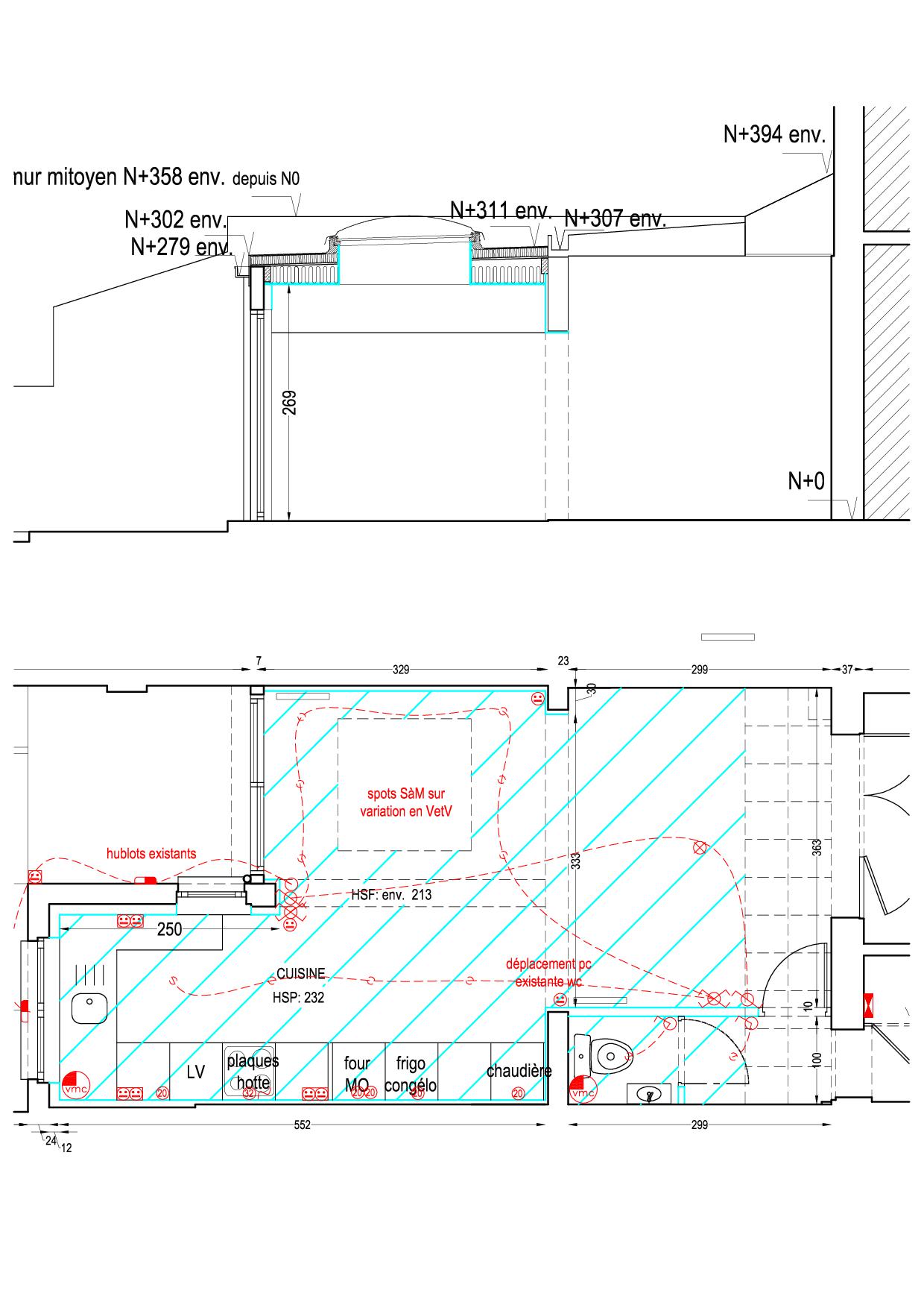
particuliersLe rez de chaussée était composé d'une cuisine étroite et toute en longueur, coupée de la salle à manger par un coin wc, d'une petite véranda peu exploitée et froide. la salle à manger était prise entre ces différents espaces et le beau double salon, sans visibilité sur le jardin. Le souhait était donc de redonner de l'espace à l'ensemble cuisine, salle à manger tout en respectant le cachet de la maison et en faisant entrer la lumière.
La cuisine et la véranda ont été réunies, le wc a été sorti des volumes de vie par la création d'un sas / vestiaire dans la prolongation du couloir d'entrée, et une large ouverture a été créée en salle à manger sur l'espace cuisine pour profiter du jardin. Un puit de lumière a été installé au dessus du coin repas faisant la part belle à la lumière zénitale.Un granit ancien, chiné par les propriétaires a été posé dans l'esprit du granito de la salle à manger.