
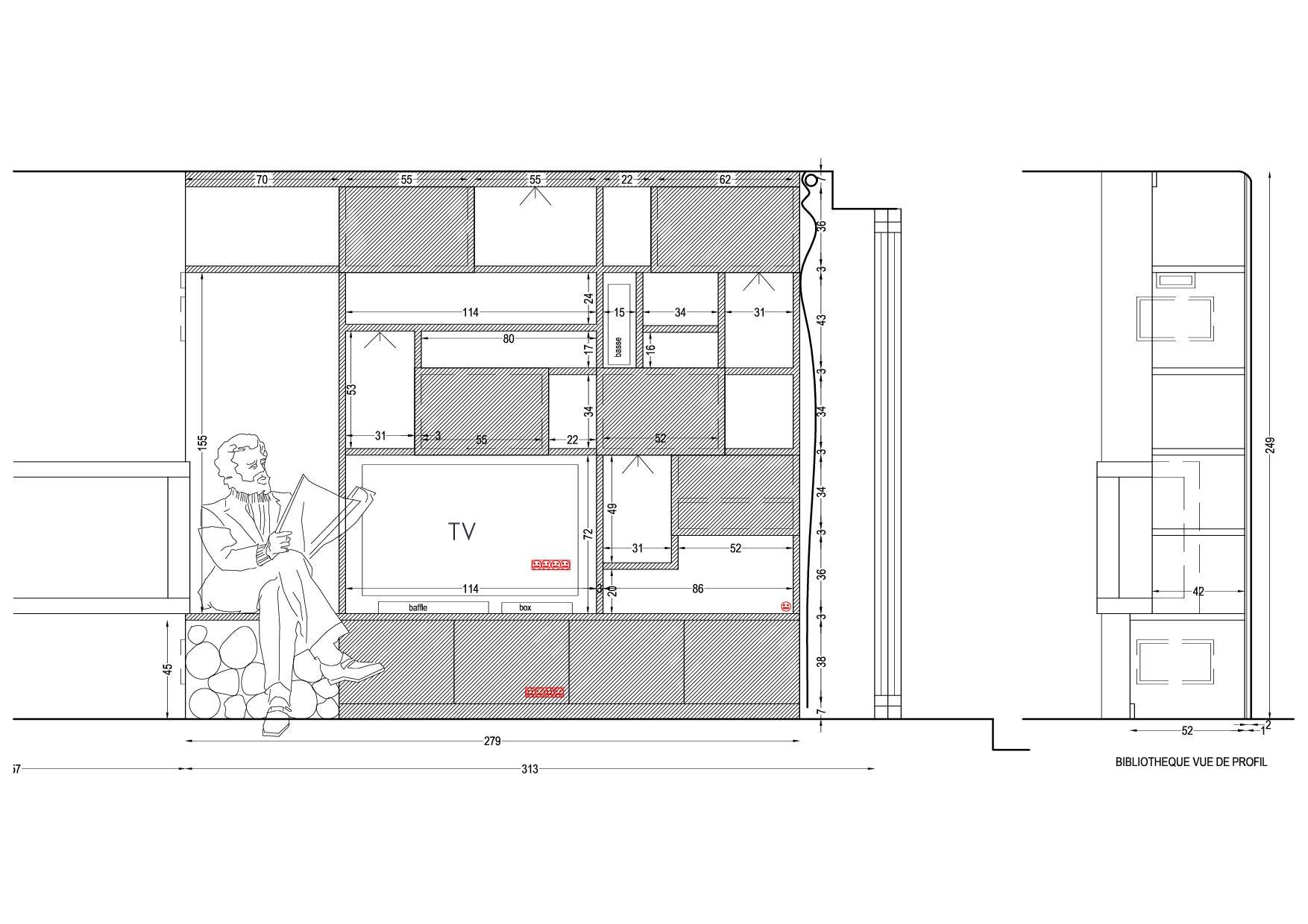
designLa problématique de départ était de remplacer une armoire insuffisante pour accueillir livres, CD, objets décoratifs et divers matériel en n'exposant pas tout à la vue. Il fallait aussi que la télévision et le matériel audiovisuel s'y incorpore tout en restant discret. La taille des cases a été calculée en fonction de tous ces éléments, tout en dialogant avec la cheminée qui est devenue une part intégrante du mur bibliothèque. Des spots extra plat éclairent certaines cases mettant en valeur les jolis objets tandis que les rangements inférieurs cachent les jeux des enfants. Une niche à côté de la cheminée est prête à recevoir la réserve de bois tandis qu'un espace lecture a été préservé au coin de la cheminée.