Réalisationscommerces

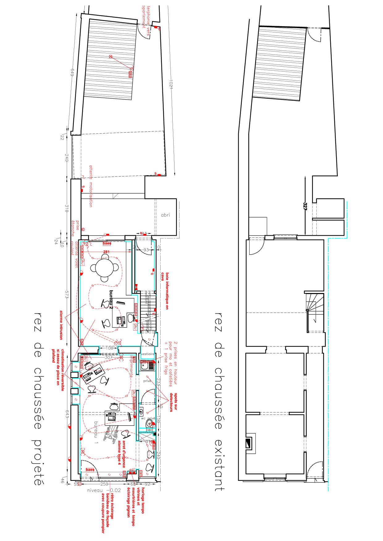
Transformation d'une habitation en agence immobilière (Hem)

Conception seule.

Avant/Après

Toutes les photos

CONTACT

PLAN DU SITE
Administration