
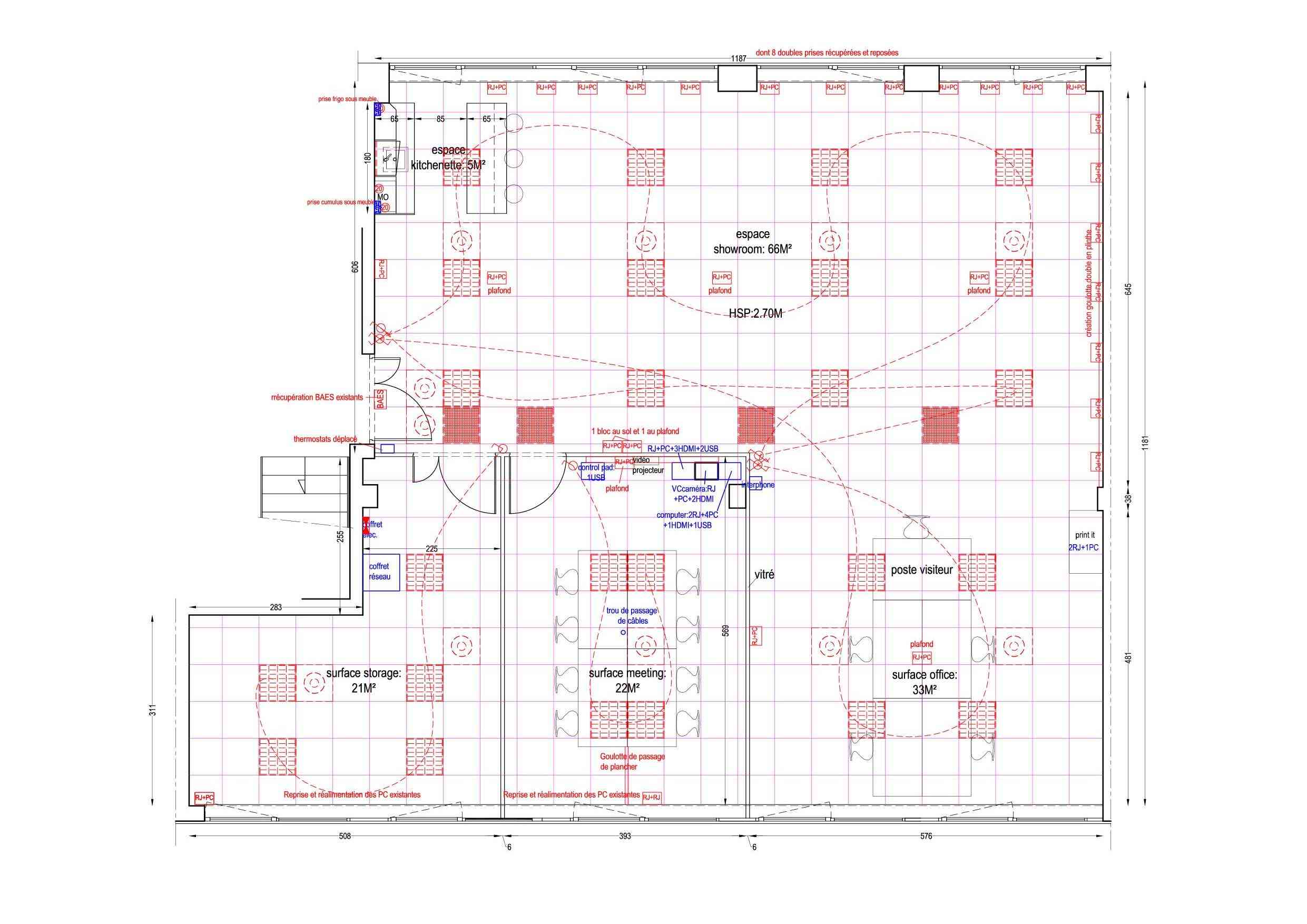
commercesLa société Epson France souhaitant déménager dans un local plus grand et lumineux, un projet a été mis au point respectant un cahier des charges précis, propre à l'entreprise, avec un showroom fluide, des zones de travail, de réunions et de stockage précis.